CopyRight©2023 evtolwiki.com All Right Reserved
天正建筑2014绘制双分三跑楼的操作教程
来源:网络
时间:2024-07-19 11:29:16
当前不少网友表示自己才接触天正建筑2014.这款应用,还不晓得绘制双分三跑楼的操作,接下来就为你们分享天正建筑2014绘制双分三跑楼的操作流程,大家都来一起学习吧。
天正建筑2014绘制双分三跑楼的操作教程

我们需要先打开天正建筑2014软件,并简单绘制一个房间,如下图所示

然后我们点击“楼梯其他”,然后点击“双分三跑楼梯”,如下图所示


接着我们打开“双分三跑楼梯”编辑页面,依次选择自己需要的数据,如下图所示











这时我们在“双分三跑楼梯”编辑页面点击“确定”,如下图所示

接下来我们根据命令行提示“点取位置”,绘制双分平行楼梯,如下图所示

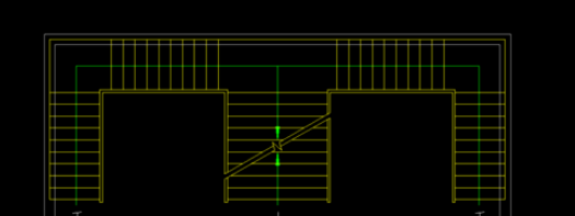
绘制完成后,如下图所示

在命令行输入“3DO”,点击回车键,进入“受约束的动态观察模式”,然后就可以直观的看到自己绘制的双分三跑楼梯,如下图所示

最后一步我们可以改变一下“视觉样式”,看一下自己绘制的双分三跑楼梯;在“受约束的动态观察”模式下点击鼠标右键,选择“视觉样式”,点击“真实”,如下图所示

根据上文为你们讲述的天正建筑2014绘制双分三跑楼的详细操作方法,朋友们是不是都学会了呀!
相关攻略
-
AutoCAD2013中图纸转成PDF格式的详细步骤时间:2024-07-24
-
dreamweaver cs6添加文本区域的操作过程时间:2024-07-24
-
dreamweaver cs6遇到编辑文字反应慢的处理步骤时间:2024-07-24
-
dreamweaver cs6中插入注释的具体操作方法时间:2024-07-24
-
Foxmail设置阅读收条的具体过程时间:2024-07-24





